Luxury apartment in Sheffield city centre
Let to reliable professional tenants
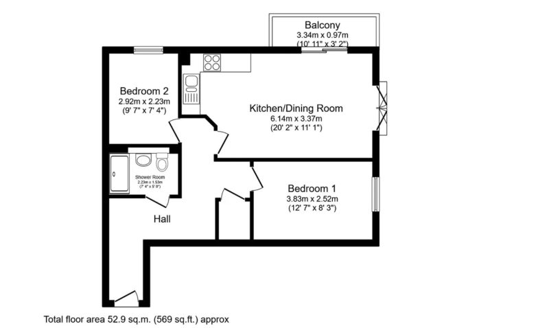
- Luxury 2 bedroom apartment in a lovely development
- 9th floor with fantastic views
- Balcony
- Energy Efficient- EPC C
- Currently tenanted at £850 per month/£10,200 per annum
- Rental Yield 10.2% per annum
- Ideal long term investment
- Good capital growth expected




