Luxury apartment in Sheffield city centre
N.A,
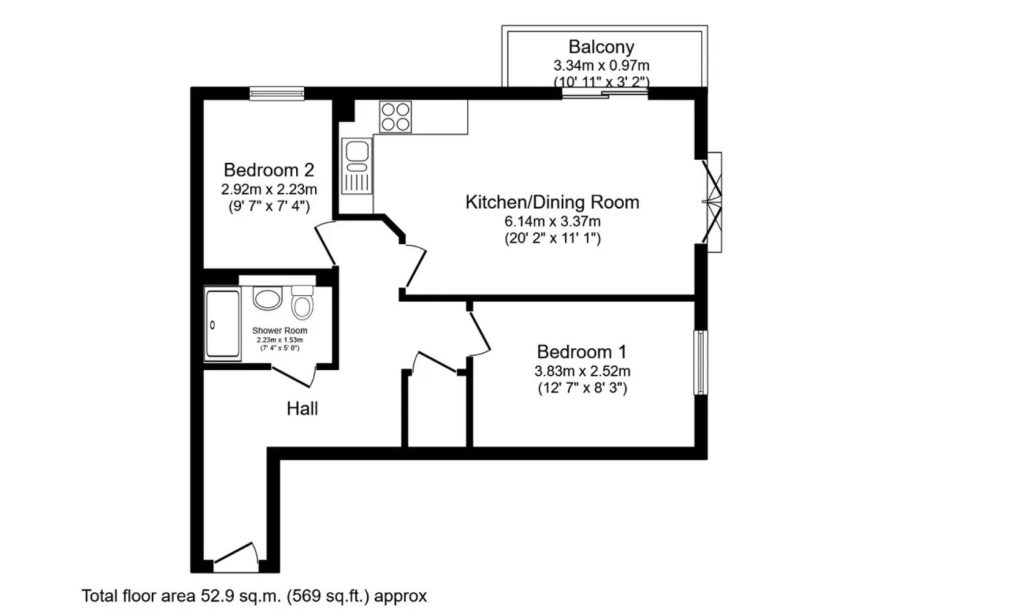
Apartment
Bedrooms: 2
Bathrooms:1
Receptions:1
Market Value: £ 130,000
Rental Income: £ 850 per month
Rental Yield: 8.2%
Discounted Price: £ 99,950
| Location: | Sheffield City Centre |
| Market Value: | £ 130,000 |
| Instant Equity: | N.A |
| Property Type: | Apartment |
| Rental income: | £ 850 per month |
| Rental yield: | 8.2% |